Vente - Maisons - COLMAR - 68000

239 000 €

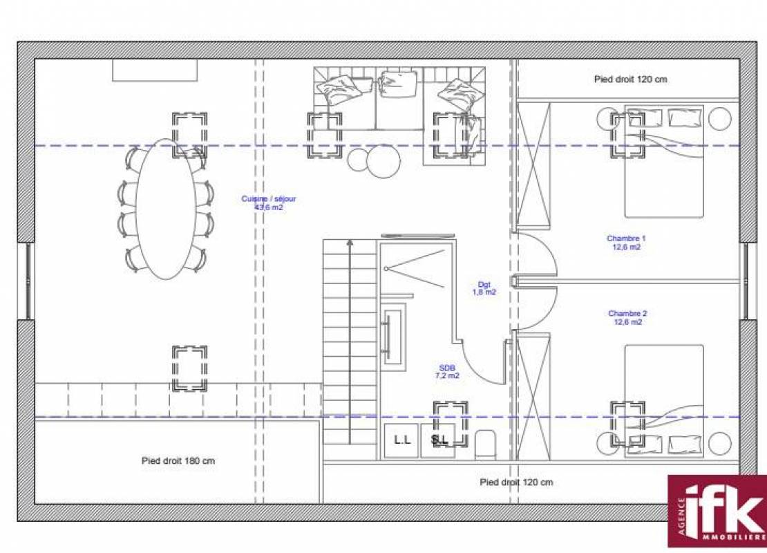
Colmar - Maison de 160m2 + combles

Sous compromis

COLMAR

Descriptif: Colmar Maison de 160m2 sur une parcelle de 221m2 située à 100 mètres de l’IUT du Grillenbreit et à 300 mètres du centre-ville.
Sous-sol de 80m2.
Combles aménageable de 75m2
Possibilités de transformer en 5 appartements + 7 parking (Plans sur demande).

Eligible défiscalisation De Normandie.
Situé en Zone UA.

Prix de vente : 239 000€ honoraires d’agence charge vendeur.
Travaux à prévoir.

DPE : E (388 Kw/m2/an)
GES : D (45 KgCO2/m2/an )
Estimation des coûts annuels d’énergie du logement pour un usage standard (chauffage, eau chaude sanitaire, éclairage, auxiliaires) : entre 3819 € et 5167 €
Indexation sur les coûts des énergies au 01/01/2021

Tel : 06 37 52 21 48
Agence IFK
2 agences à votre service :
HORBOURG-WIHR : 75 grand rue
FORTSCHWIHR : 22D route de Colmar.

**ESTIMATION – TRANSACTIONS – LOCATIONS – CONSEILS - **

Les informations sur les risques auxquels ce bien est exposé sont disponibles sur le site Géorisques : www.georisques.gouv.fr


Référence : 23806
Ville: COLMAR

Prix : 239 000€
Honoraires à la charge du vendeur
Surface du terrain m²: 220
Surface habitable m²: 160
Nombre de chambres: 5
Nombre de pièces: 7

Bilan énergétique

Date de réalisation du DPE : 11/05/2024
Montant estimé des dépenses annuelles d’énergie pour un usage standard : entre 3819€ et 5167€ par an
Prix moyens des énergies indexés au 11/05/2024 (abonnements compris)

Franckie Khodja

Agent

06 70 52 66 57

En soumettant ce formulaire, j'accepte que les informations saisies soient exploitées dans le cadre de la demande et de la relation commerciale qui peut en découler.
Nous vous informons que vous pouvez vous opposer à l'utilisation de vos coordonnées téléphoniques à des fins de prospection commerciale en vous inscrivant sur la liste d'opposition au démarchage téléphonique soit en adressant un courrier à OPPOSETEL (92-98 boulevard Victor Hugo, 92110 CLICHY), soit en vous inscrivant sur la liste rouge disponible sur le site bloctel.gouv.fr

* champs obligatoires

Merci de remplir les champs obligatoires

avis google
avis google