Vente - Locaux commerciaux - HORBOURG-WIHR - 68180

160 000 €

Horbourg-Wihr : Local professionnel de 87 m² avec parkings

Disponible à la vente

HORBOURG-WIHR

Descriptif: EXCLUSIVITÉ AGENCE IFK :

À Horbourg-Wihr, nous vous proposons à la vente un local professionnel de 87,78 m², situé au 1er étage avec ascenseur et offrant un environnement idéal pour installer vos bureaux ou toute autre activité professionnelle.

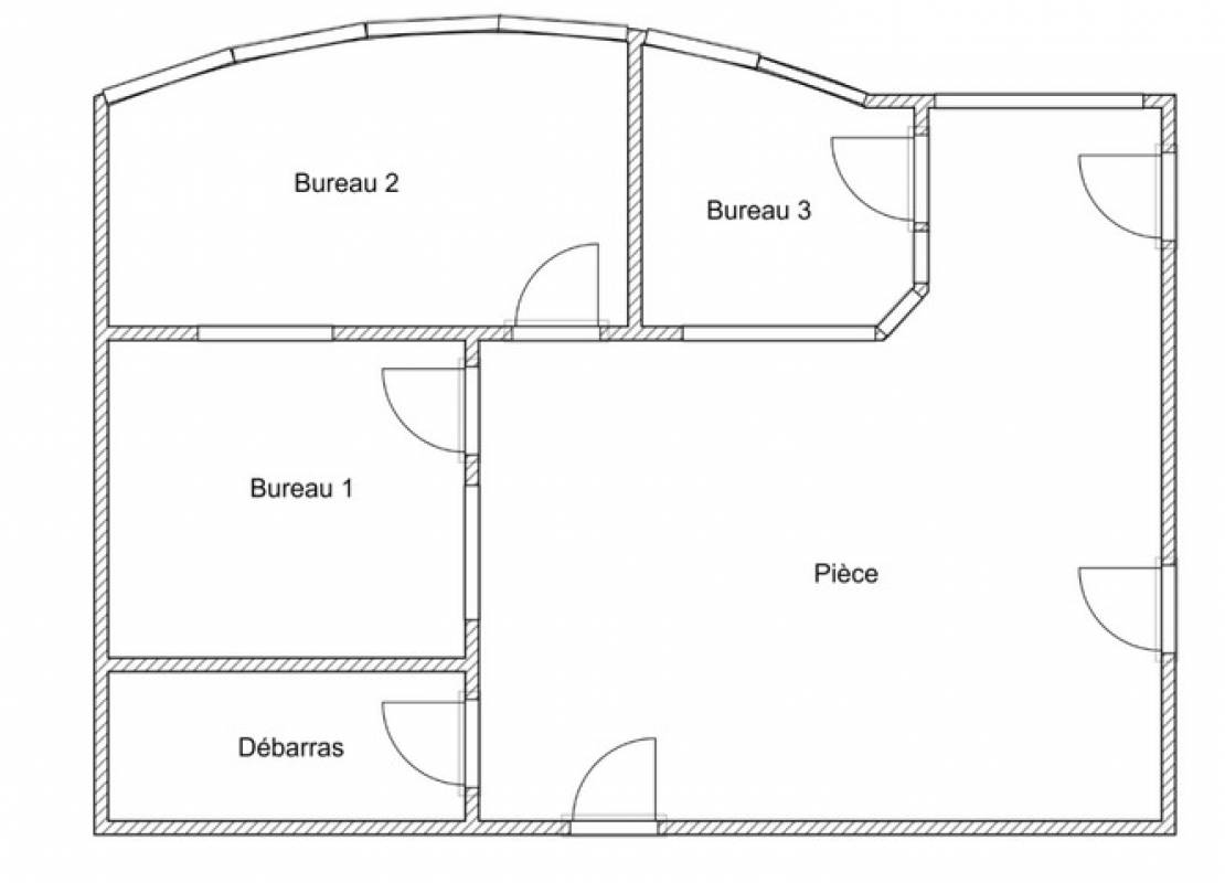
Il se compose de :
• Un open space,
• 3 espaces bureaux privatifs,
• Un espace cuisine,
• Un débarras

Ses caractéristiques :
• Chauffage collectif au gaz avec répartiteurs,
• 3 cassettes pour la climatisation réversible,
• Deux places de parking privatives
• Toilettes communes dans le bâtiment,
• Accès autoroute A35 à seulement 3 minutes,
• Proximité immédiate des commerces.

Prix de vente : 160 000 € Honoraires d’agence inclus à la charge du vendeur

Ce bien est soumis au régime de copropriété
Nombre de lots (locaux+parkings) : 527
Charges de copropriété : 560 € par trimestre, chauffage inclus

Pour plus d'informations ou afin planifier une visite, veuillez contacter Madame Joey ANTOINE par téléphone au 06.51.49.80.38 ou par mail à joey.agenceifk@gmail.com.

Agence IFK
2 agences à votre service :
HORBOURG-WIHR : 75 Grand rue
FORTSCHWIHR : 22D route de Colmar
** ESTIMATION – TRANSACTIONS – LOCATIONS – CONSEILS **
L’Agence IFK propose une estimation gratuite de votre bien immobilier

Les informations sur les risques auxquels ce bien est exposé sont disponibles sur le site Géorisques : www.georisques.gouv.fr

Référence : 23910
Ville: HORBOURG-WIHR

Prix : 160 000€
Honoraires à la charge du vendeur
Surface habitable m²: 88
Nombre de pièces: 4
Chauffage
Chauffage gaz

Bilan énergétique

Date de réalisation du DPE : 31/10/2025

Joey ANTOINE

Agent

06 51 49 80 38

En soumettant ce formulaire, j'accepte que les informations saisies soient exploitées dans le cadre de la demande et de la relation commerciale qui peut en découler.
Nous vous informons que vous pouvez vous opposer à l'utilisation de vos coordonnées téléphoniques à des fins de prospection commerciale en vous inscrivant sur la liste d'opposition au démarchage téléphonique soit en adressant un courrier à OPPOSETEL (92-98 boulevard Victor Hugo, 92110 CLICHY), soit en vous inscrivant sur la liste rouge disponible sur le site bloctel.gouv.fr

* champs obligatoires

Merci de remplir les champs obligatoires

avis google
avis google